Vendita PROSSIMA DISPONIBILITA'
TRILOCALE IN VENDITA A DARFO B.T. – DAR137-5P/T3189
Via Mirabella, Darfo Boario Terme
  • Tratt. Riservata

In sintesi

Cod. Immobile: CAM-T3189
  • Appartamento
  • Tipologia
  • 3
  • Locali
  • 2
  • Camere
  • 2
  • Bagni
  • 120
  • Mq.
  • Box Doppio
  • Posto auto

Descrizione

Darfo Boario Terme – Via Mirabella
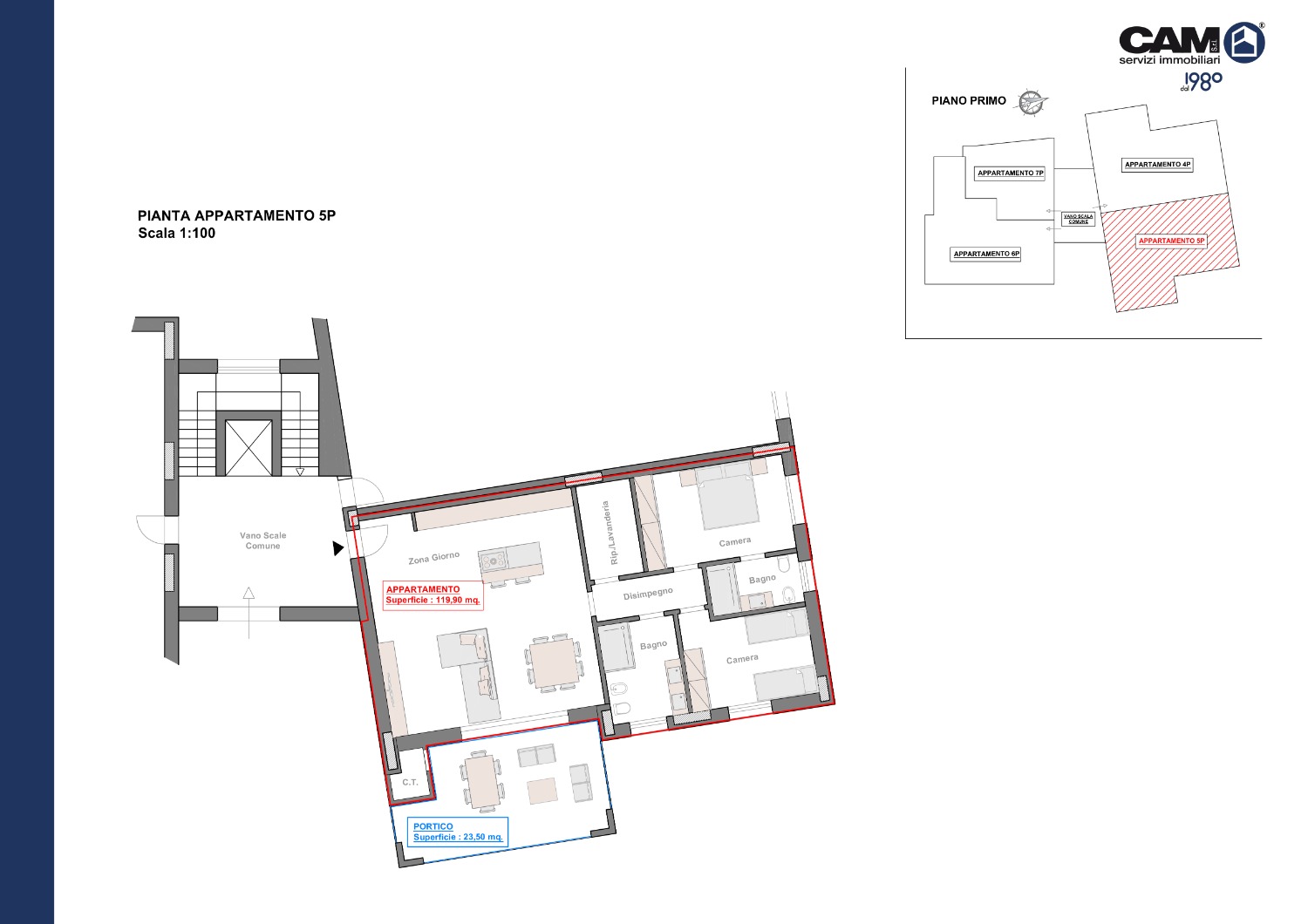
In una posizione tranquilla e soleggiata di Darfo Boario Terme, elegante trilocale di mq. 119,90 ca. situato al piano primo di un nuovo complesso residenziale dal design moderno e realizzato con elevati standard qualitativi.

L’immobile offre una spaziosa e luminosa zona giorno openspace, che si apre direttamente sul portico di mq. 23,50 ca., questo spazio esterno rappresenta un vero valore aggiunto, perfetto per godersi momenti di relax all’aria aperta.

La zona notte è stata pensata per garantire privacy e funzionalità, con due comode camere da letto che offrono ampi spazi per il riposo e l’organizzazione degli armadi. Completano questa area un pratico ripostiglio, ideale per riporre oggetti stagionali o di uso meno frequente, e due bagni che assicurano la massima comodità per tutta la famiglia.

Completano l’immobile al Piano Interrato: box auto doppio di mq. 46,00 ca. perfetto sia per chi possiede due vetture sia per chi desidera utilizzare uno spazio come deposito per biciclette o attrezzi, oltre a una cantina di mq. 15,00 ca. che offre ulteriore spazio di stoccaggio.

Dettagli ulteriori dell’immobile:
Il complesso è servito da ascensore per la massima comodità.
Dal punto di vista energetico, l’appartamento vanta la Classe A4 con impianto fotovoltaico e sistema di riscaldamento a pompa di calore individuale, garantendo elevato comfort abitativo e significativo risparmio sui consumi.
Gli appartamenti vengono consegnati finiti e chiavi in mano, secondo le specifiche del capitolato di vendita.
Consegna prevista dicembre 2026
A partire da Euro 375.000,00.

Superficie commerciale complessiva mq. 161,45 ca.

Consigli del Vostro Agente Immobiliare
La posizione in Via Mirabella è particolarmente apprezzata per la sua tranquillità residenziale, pur rimanendo a pochi passi da tutti i principali servizi di Darfo Boario Terme.
Una soluzione perfetta per chi cerca un immobile moderno con tutti i comfort contemporanei.

Se sei interessato a saperne di più chiamami subito o contattami via Whatsapp


Riscaldamento: Autonomo

Stato occupazione: Libero

Indirizzo

Google Maps
  • Comune Darfo Boario Terme
  • Stato Italia
  • Cap 25047
  • Area DARFO BOARIO TERME

Classe energetica

  • Classe energetica: In fase di rilascio
  • Prestazione energetica dell'edificio: 0 - kWh/mqa
  • A+
  • A
  • B
  • C
  • D
  • E
  • F
  • G
  • H

Informazioni di contatto

Vedi immobili
GIOVANNI RINETTI

Richiesta

Proposte simili

Confronta Strutture

Confronta
GIOVANNI RINETTI
  • GIOVANNI RINETTI