Vendita
CAPANNONI IN VENDITA A PISOGNE – PIS1604
Via Neziole, Pisogne
  • € 330.000

In sintesi

Cod. Immobile: CAM-CT701
  • Capannone
  • Tipologia
  • 11
  • Locali
  • 11996
  • Mq.
  • Nessuno
  • Posto auto

Descrizione

PISOGNE VENDESI CAPANNONI INCARICO IN COLLABORAZIONE CON REMAX ORANGE.

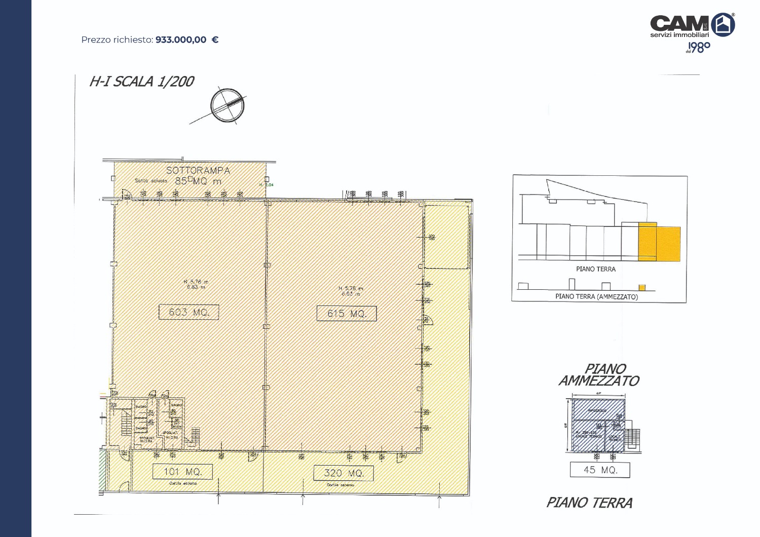
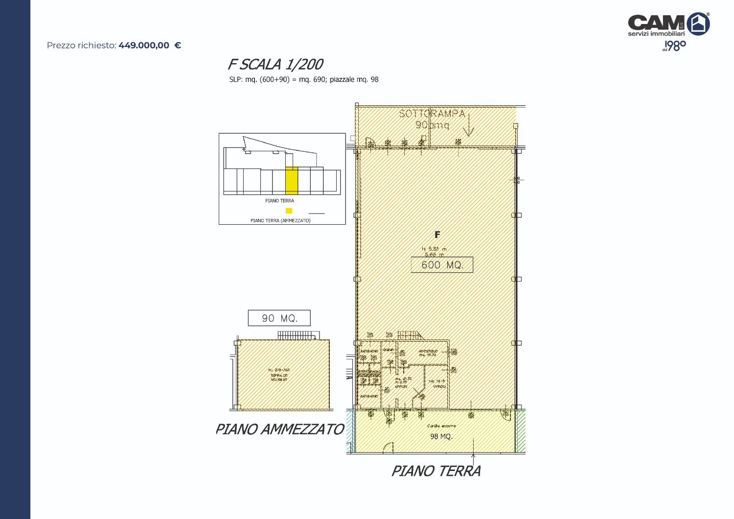
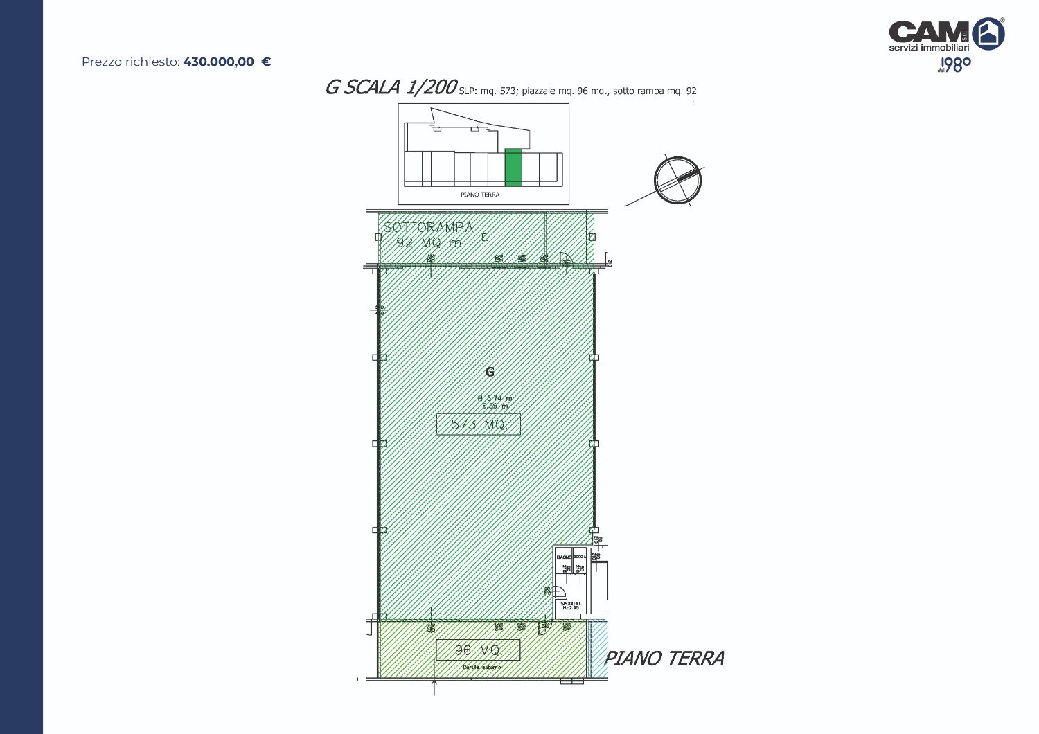
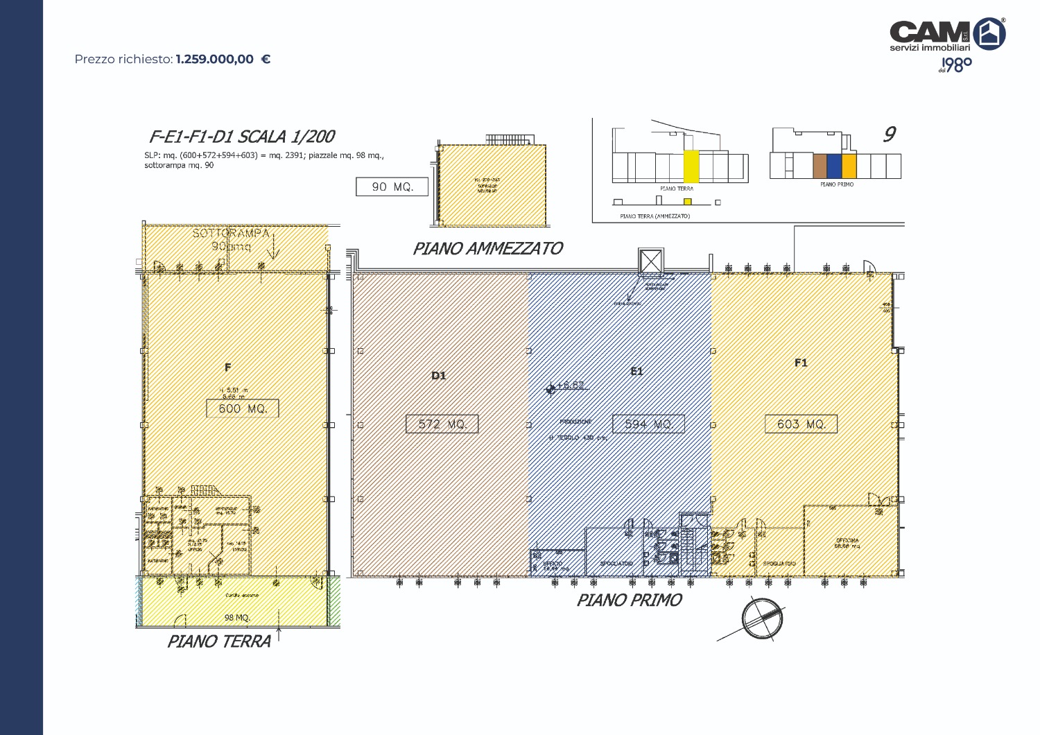
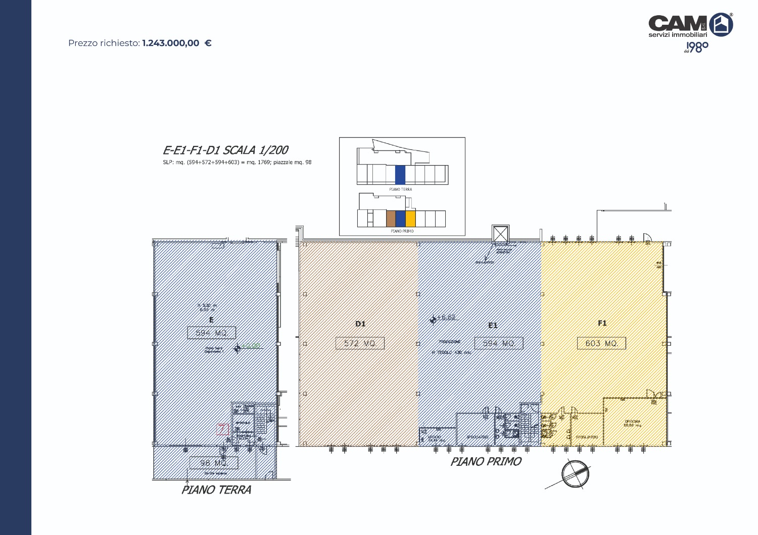
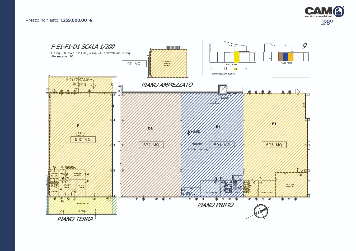
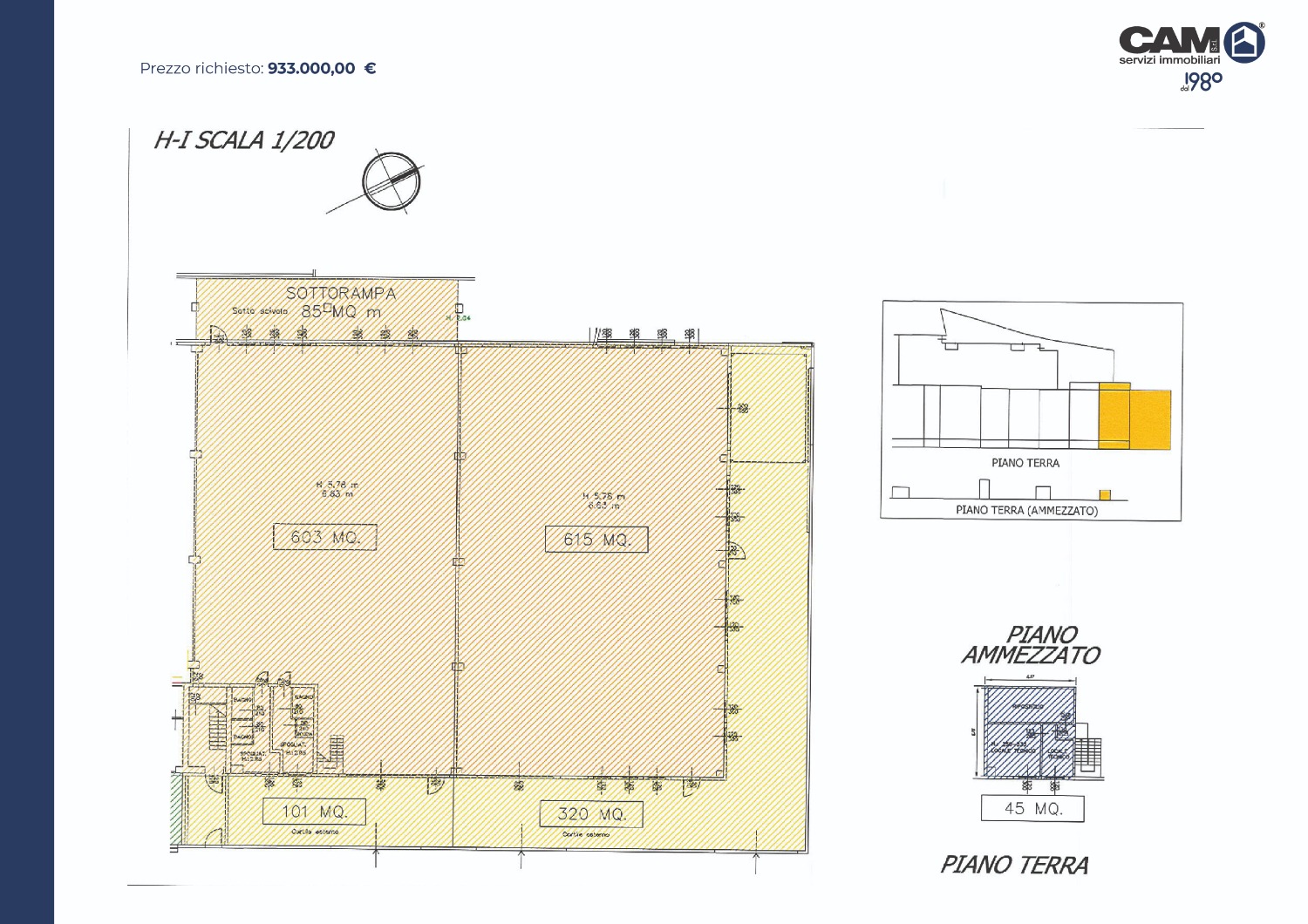
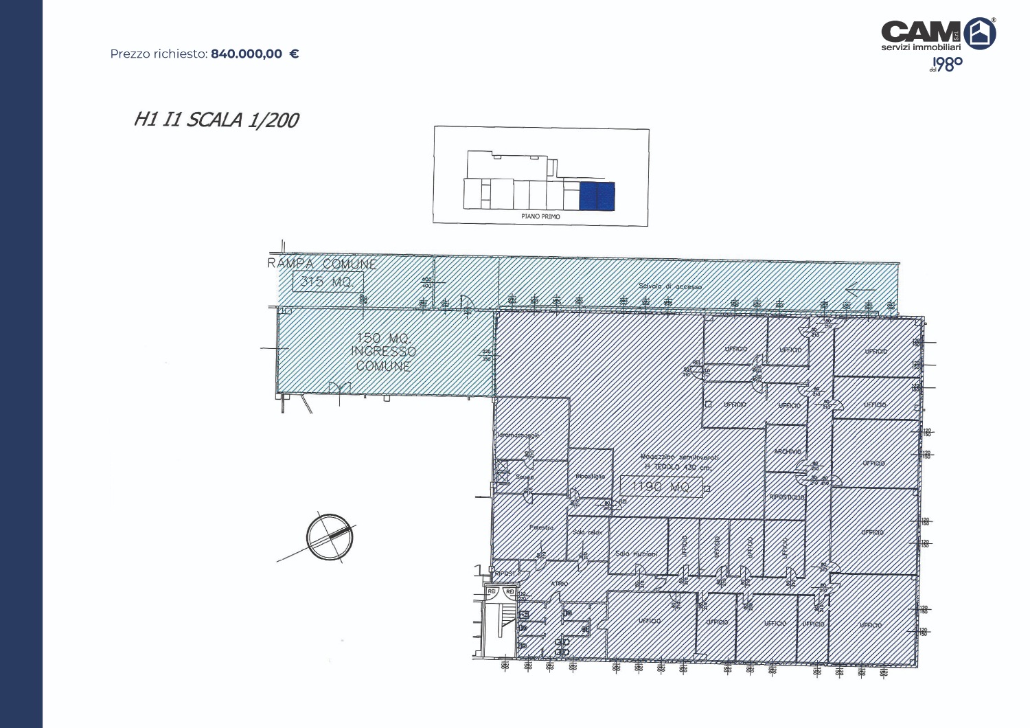
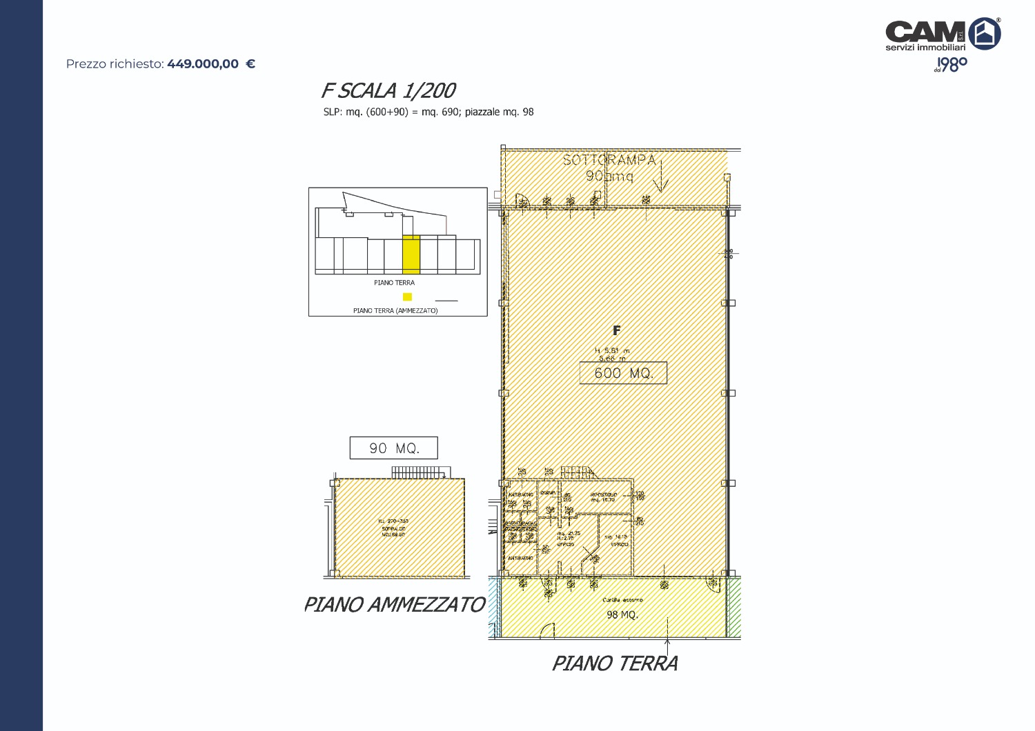
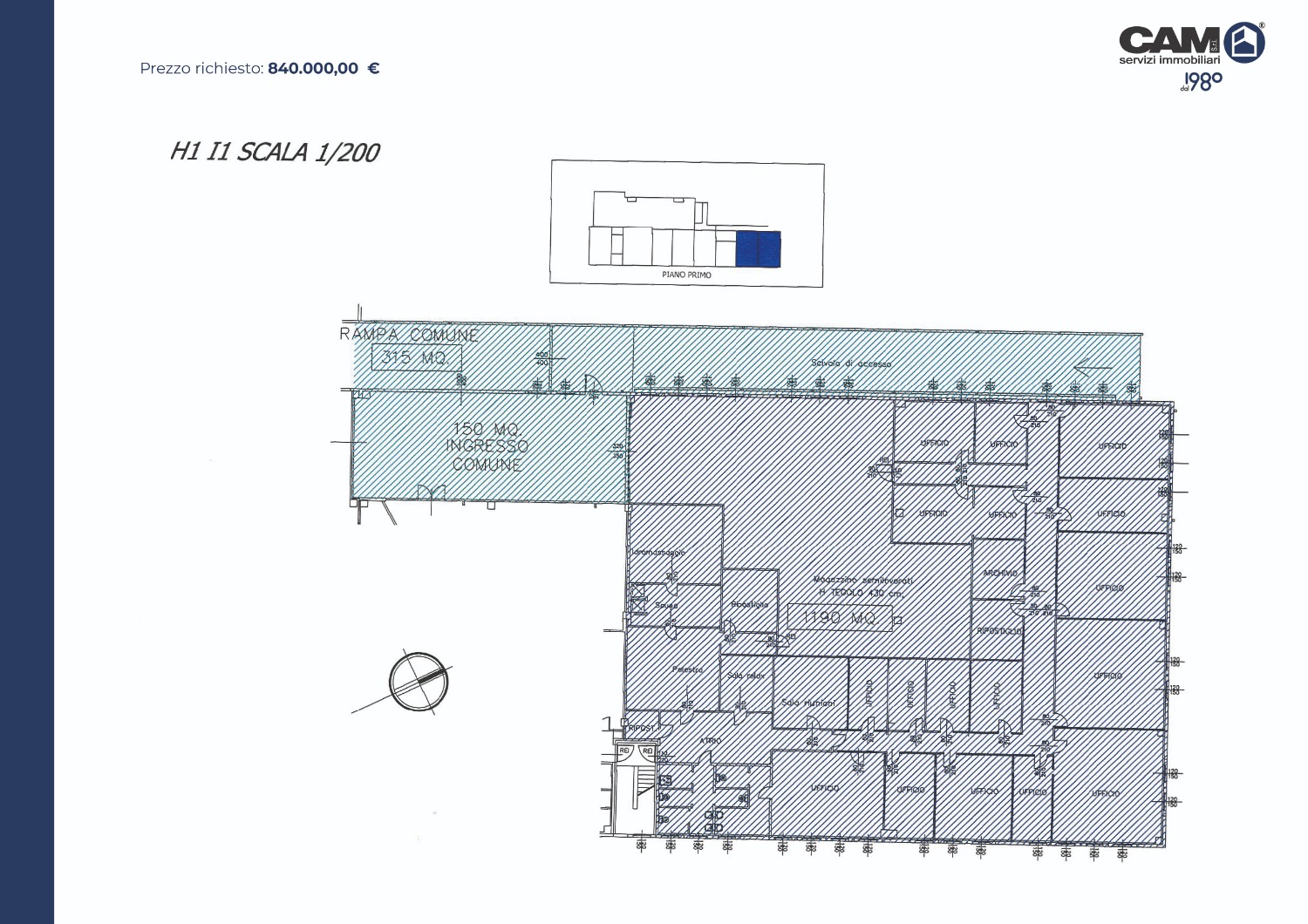
In zona industriale di Pisogne, caratterizzata da una comoda viabilità interna e a pochi passi dallo svincolo della superstrada SS42, con ampi parcheggi pubblici a disposizione per mezzi aziendali, dipendenti e clienti, proponiamo in vendita un capannone di circa 7.700 mq. L’immobile si sviluppa su due livelli e offre diverse possibilità di frazionamento per soddisfare le specifiche esigenze di aziende di vario tipo
(VEDI TUTTE LE POSSIBILITA’, METRATURE E PREZZI SCORRENDO LA GALLERY DELLE FOTO, A PARTIRE DA 330.000,00 Euro)

All’interno dei vari lotti sono presenti zone uffici, servizi e impianti già predisposti (luce, elettrico, aria compressa e riscaldamento), da adattare in base alle necessità specifiche ed alle metrature scelte.

Per maggiori informazioni o per fissare un sopralluogo, non esitare a contattarci!

Consigli del Vostro Agente Immobiliare
L’intero compendio immobiliare si presenta in ottime condizioni, immediatamente disponibile e pronto all’uso. La posizione strategica e la viabilità rendono la struttura ideale per aziende che operano non solo nella Vallecamonica, ma anche nelle province di Bergamo, Brescia e Milano.

Se sei interessato a saperne di più chiamami subito o contattami via Whatsapp


Video

Indirizzo

Google Maps
  • Comune Pisogne
  • Stato Italia
  • Cap 25055
  • Area Pisogne

Classe energetica

  • Classe energetica: G
  • Prestazione energetica dell'edificio: 0 - kWh/mca
  • A+
  • A
  • B
  • C
  • D
  • E
  • F
  • | Classe energetica G
    G
  • H

Informazioni di contatto

Vedi immobili

Richiesta

Proposte simili

Confronta Strutture

Confronta
ROMANO MINOIA
  • ROMANO MINOIA